Ми завжди на зв’язку — відкриті до діалогу, запитань і ваших ідей. Якщо ви на старті шляху або вже готові діяти — просто залиште повідомлення. Відповімо, порадимо, запропонуємо найзручніший формат співпраці
Будівництво патіо в елітному передмісті Києва
Кейс: від розробки дизайн-проєкту до повної реалізації концептуальної квартири.
Дані по об’єкту:
Старт робіт: 2024 рік
Локація: «Золочів», Київська область
Площа: : 27,6 м²
Дизайнер : Світлана Москаленко
Будівництво: Суліко Хахва
Головний архітектор: Іванова Світлана
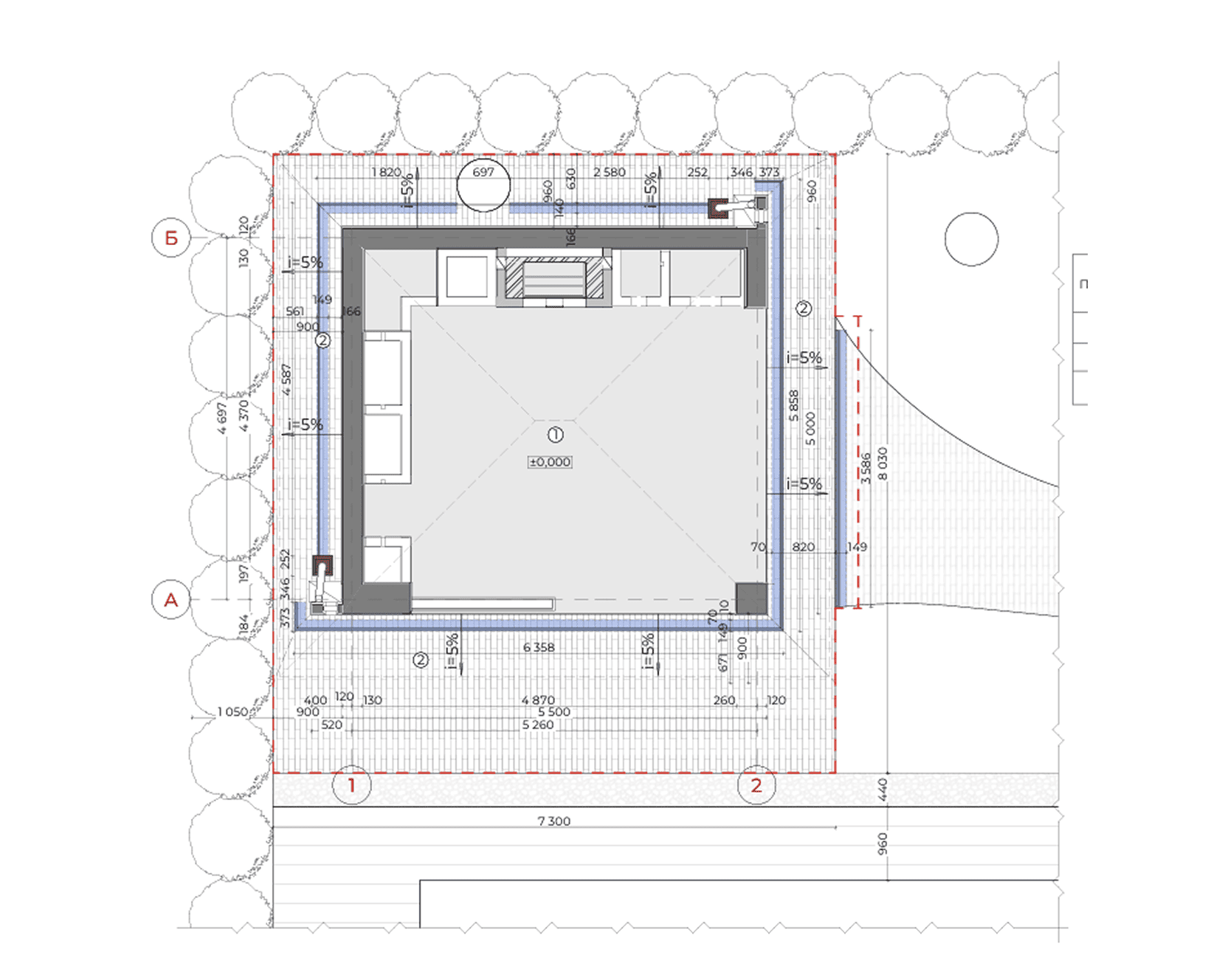
Етап 1: Розробка проєкту
Задача: створити повний комплект робочої документації для будівництва патіо, що відповідає технічним вимогам та функціональним потребам замовника.
Що було зроблено:
- Бриф та консультація: Проведено детальний аналіз вимог замовника Олександра.
- Генеральний план: Виконано комплексні обміри та розроблено генеральний план забудови.
- Технічна документація: Підготовлено повний пакет креслень, що включає схеми фундаментів, мурування, покрівлі, меблів, сантехнічного та електричного обладнання.


Етап 2: Фундаментні та інженерні роботи
Задача: Забезпечити надійну основу для подальшого будівництва та прокласти основні комунікації.
Що було зроблено:
- Підготовка ділянки: Виконано комплексні земляні роботи з підготовки території та прокладання елементів сучасної системи водовідведення, включаючи дренажний колодязь. Це ключовий етап перед капітальним будівництвом.
- Заливка фундаменту: Залито армовану монолітну плиту з бетону марки М250. Товщина плити становить 280 мм, а площа — 26,91 м². Ця монолітна конструкція є запорукою міцності
- Гідроізоляція: Проведено обмазувальну гідроізоляцію зовнішніх стін на висоту 300 мм, а також використано шипоподібну геомембрану, що захищає фундамент від вологи та ґрунтових вод.
- Інженерні комунікації: Виконано гільзування плити для подальшого монтажу водопроводу та каналізації. Це забезпечує легкість підключення сантехнічного обладнання.


Етап 3: Мурування та облицювання
Задача: Зведення міцних стін з інтегрованими технологічними елементами для каміна та гриля, що є критично важливим для будівництва патіо.
Що було зроблено:
- Кладка: Основні будівельні конструкції зведені з трьох видів цегли: керамічної, шамотної та клінкерної.
Для зовнішнього оздоблення каміну використано клінкерну цеглу DEPPE Backstein-Keramik. - Металеві конструкції: В якості перемичок у зонах цегляних меблів та в камінній частині використано сталеву смугу (50х5 мм) та кут (50x50x5 мм).
- Вентиляція: Виконано технологічні отвори в бічних стінах каміну для підключення купольних витяжок.
- Облицювання: Зовнішнє облицювання стін патіо виконано клінкерною плиткою Paradyz Sernir Brown.


Етап 4: Покрівельні роботи та фасад
Задача: Забезпечити захист споруди від атмосферних опадів, використовуючи сучасні та довговічні матеріали для покрівлі та фасаду.
Що було зроблено:
- Кроквяна система: Змонтовано кроквяну систему.
- Покрівля: Виконано покрівельні роботи з використанням бітумної черепиці Katepal, що забезпечує надійне покриття та захист від негоди.
- Система водовідведення: Встановлено зовнішню систему водовідведення (ринви та водостічні труби), що гарантує ефективне збирання та відведення опадів.
- Облицювання фасаду: Фасад оздоблено клінкерною плиткою Paradyz Sernir Brown Elewacja та декоративним планкеном з масиву модрини/ялини.
- Елементи фасаду: Змонтовано касети та профілі для ZIP-ролетів, що дозволяє закривати простір патіо.


Етап 5: Внутрішнє оздоблення та інженерія
Задача: Завершити будівництво та монтаж усіх внутрішніх систем, щоб створити повністю готовий до експлуатації простір.
Що було зроблено:
- Покриття підлоги: На підлогу укладено ректифікований керамограніт Ceramica Sant’Agostino, загальна площа покриття — 20,03 м².
- Електромонтаж: Виконано повне розведення електромережі та встановлення електрофурнітури Schneider Asfora та Merten.
- Освітлення: Змонтовано освітлювальні прилади різних типів, включаючи накладні точкові світильники, трекові системи, бра та підсвітку по периметру.
- Меблі та обладнання: Встановлено вбудовані меблі, фасади яких обшиті фанерою з металевим листом та оздоблені декоративною штукатуркою.
- Сантехніка та техніка: Інтегровано сантехніку та техніку, зокрема газовий гриль Broil King, холодильник Liebherr, вбудовану мийку Kraus Kore та змішувач Blanco.


Етап 6: Фінальне завершення проєкту
Задача: Підготувати об’єкт до здачі в експлуатацію, виконавши фінальні роботи та перевірки.
Що було зроблено:
- Декоративні елементи: Виконано встановлення касет та профілів ZIP-ролетів для захисту від негоди.
- Системи автоматизації: Проведено підключення та налаштування ZIP-ролетів, які керуються за допомогою пультів дистанційного керування.
- Фінальна перевірка: Виконано перевірку всіх інженерних систем та обладнання, що забезпечує готовність патіо до використання.


Підсумки проєкту – Від фундаментних робіт та монтажу інженерних систем до фасадного облицювання та встановлення сантехніки й електрики – кожен етап був реалізований згідно з розробленою технічною документацією та високими стандартами будівництва.