Ми завжди на зв’язку — відкриті до діалогу, запитань і ваших ідей. Якщо ви на старті шляху або вже готові діяти — просто залиште повідомлення. Відповімо, порадимо, запропонуємо найзручніший формат співпраці
Дизайн-проєкт & ремонт у стилі сучасного мінімалізму
Кейс: від розробки дизайн-проєкту до повної реалізації концептуальної квартири.
Завдання:
Перед нами стояло завдання повної трансформації квартири. Мета полягала не в стандартному ремонті, а у створенні цілісного, авторського інтер’єру, що є втіленням сміливої дизайнерської концепції. Цей кейс демонструє наш ключовий принцип: смілива естетика, що базується на безкомпромісній інженерній точності. Саме ця синергія дизайну, інженерії та будівництва лежить в основі нашого реалізованого простору.
Дані по об’єкту:
Старт робіт: Листопад 2022
Локація: м. Київ, ЖК River Stone.
Площа: 62,94 м²
Стиль: Сучасний мінімалізм
Дизайнер : Світлана Москаленко
Будівництво: Суліко Хахва
Інженерія: Єгор Туник
Етап 1: Концепція та планування
Задача: головним завданням було створити унікальний дизайн-проєкт для квартири в ЖК River Stone площею 62,94 м², повністю адаптований під потреби замовників молодої пари Андрія та Оксани .
Що було зроблено:
- Бриф та консультація: Нашою відправною точкою став детальний діалог із замовниками Андрієм та Оксаною Веремчуками.
- Технічні обміри: Було виконано детальний обмірний план простору площею 62,94 м², який став основою для всіх проєктних рішень.
- Планувальні рішення: Розроблено планування, що дозволило максимально ефективно використати простір. Виділені зони: Open Space (33,89 м²), спальня (9,14 м²), гардеробна (6,02 м²), санвузол (5,04 м²) та передпокій (8,85 м²).
- Стилістика: Затвердженно стиль сучасного мінімалізму, який підкреслює простоту та функціональність простору.


Етап 2: Дизайн-проєкт та технічна документація
Задача: Забезпечити повну візуалізацію майбутнього простору та надати детальну інженерну документацію для бездоганної реалізації.
Що було зроблено:
- Формування детального кошторису: Сформували фінальний кошторис на ремонт, що включав детальний розрахунок вартості всіх робіт та матеріалів, зазначених у специфікаціях. Це забезпечило повну фінансову прозорість для клієнта.
- Дизайн-проєкт (16 аркушів): Розроблено повний дизайн-проєкт з візуалізаціями для вітальні, кухні, спальні, гардеробної та санвузла. Також створені детальні схеми для планування, освітлення, розміщення меблів, розгорток стін та інших елементів.
- Інженерна документація (41 аркуш): Підготовлено комплексну документацію, що включає:
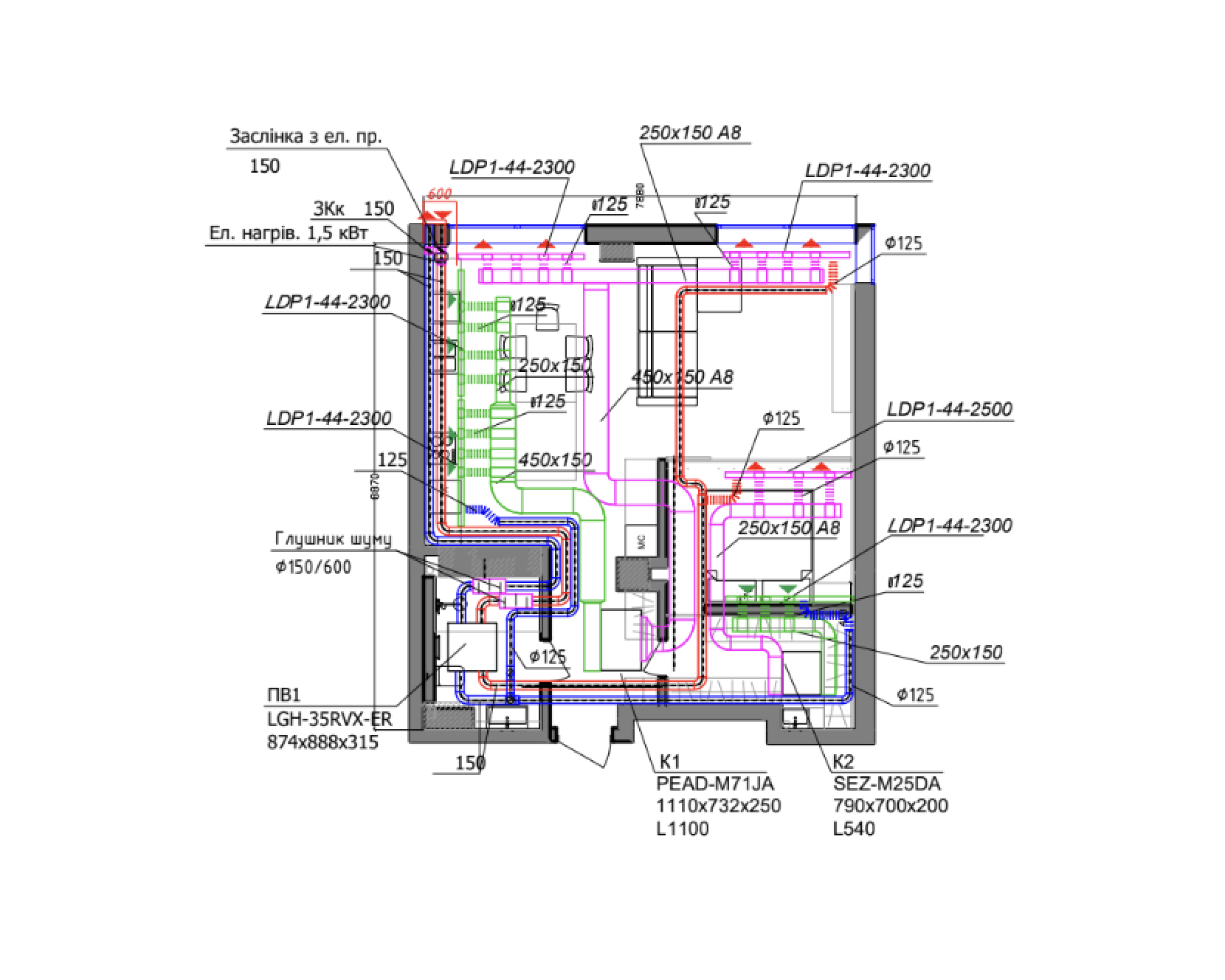
- Вентиляція та кондиціонування: Схеми подачі та забору повітря, а також розташування обладнання та вентиляційних решіток.
- Водопостачання та каналізація: Детальні плани розведення сантехнічних труб для кухні та санвузла.
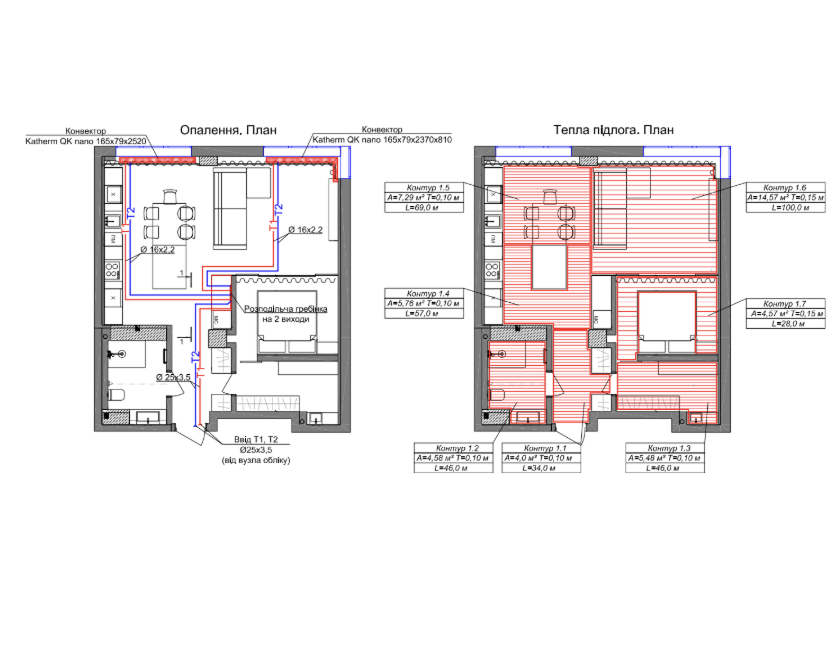
- Опалення та тепла підлога: Схеми розміщення внутрішньопідлогових конвекторів (Katherm QK nano) та контурів теплої підлоги.
- Електромережі: Детальні плани розташування вимикачів та електричних розеток з прив’язками по висотах.
- Інші схеми: Схеми будівельного монтажу, планування, розташування меблів та дверей.
- Комплектація та специфікація: Підготовлені повні списки необхідного обладнання та матеріалів для всіх інженерних систем: опалення, водопостачання, каналізації та вентиляції. Це гарантує точність у розрахунках і повну прозорість для клієнта.


Етап 3: Інженерні проєкти та їх реалізація
Задача: Розробити та імплементувати комплекс інженерних систем, що забезпечують максимальний рівень комфорту, безпеки та надійності, залишаючись непомітними в готовому інтер’єрі.
Що було зроблено:
- Вентиляція та кондиціонування: Застосовано припливно-витяжні установки LGH-35RVX-ER та SEZ-M25DA від Mitsubishi Electric. Система забезпечує циркуляцію повітря за допомогою повітропроводів.
- Водопостачання та каналізація: Змонтована система на поліетиленових трубах Ø16×2.2 та Ø25×3.5 від GENERAL FITTINGS. Встановлено бойлер
- Electrolux EWH 100 Formax DL та фільтр механічної очистки BWT.
- Опалення: Інтегровано систему «теплої підлоги» з нагрівальними кабелями CTAV-18. У квартирі встановлені внутрішньопідлогові конвектори Katherm QK nano
- Електротехніка: Розміщені електричні розетки на різних висотах, включаючи h=300, h=550 та h=1100 мм. Виводи для освітлення також продумані, зокрема вивід 12W.


Етап 4: Чорнові роботи
Задача :Підготувати приміщення до фінального оздоблення, виконавши демонтаж, монтаж нових конструкцій, а також розведення всіх інженерних мереж згідно з розробленою технічною документацією.
Що було зроблено:
- Перепланування та монтаж: демонтаж існуючих стін та зведення нових перегородок. Додатково встановлена шумоізоляція.
- Підготовка стелі: Виконано монтаж стельових коробів та опусків згідно з кресленнями: 290 мм, 320 мм та 500 мм.
- Монтаж системи вентиляції: Змонтовано мережу повітропроводів з розмірами 250×150 мм та 450×150 мм. Встановлено глушник шуму
- Ø150/600. Всі подаючі повітропроводи ізольовані теплоізоляцією
- K-Flex, товщина 10 мм.
- Розведення опалення: Встановлені внутрішньопідлогові конвектори Katherm QK nano та змонтована система
- «теплої підлоги» з нагрівальними кабелями L=28-100 м.
- Сантехнічні роботи: Виконано розведення труб для водопостачання (діаметри Ø16×2.2 та Ø25×3.5) та каналізації (діаметри
- Ø50 та Ø110).
- Електромонтажні роботи: Прокладено всі кабелі та підготовлено місця для вимикачів та розеток, зокрема, зафіксовано їхні висоти, наприклад, h=300 мм, h=550 мм, h=1100 мм.


Етап 5: Чистові оздоблювальні роботи
Задача: Завершити проєкт, виконавши всі оздоблювальні роботи та встановивши меблі та обладнання. Кінцевою метою є повна відповідність готового інтер’єру затвердженому дизайн-проєкту.
Що було зроблено:
- Оздоблення стін та стелі: Виконано фарбування стін (зокрема, в передпокої 19,04 м.кв. , кухні 22,22 м.кв. , вітальні 14,7 м.кв. , спальні 13,69 м.кв. та гардеробній 19,03 м.кв. ) та оздоблення декоративним бетоном, покритим лаком (передпокій 5,67 м.кв. , вітальня 3,31 м.кв. ). Віконні рами пофарбовані в чорний колір.
- Оздоблення підлоги: Укладено різні види покриття згідно з призначенням приміщень:
- Паркет – 25,58 м.кв.
- Керамограніт – 10,66 м.кв.
- Декоративна плитка – 0,66 м.кв.
- Монтаж обладнання: Встановлено все інженерне обладнання, сантехніку та освітлювальні прилади. Змонтовано тоноване в колір бронзи дзеркало в гардеробній (5,63 м.кв. ).
- Встановлення меблів: Здійснено збирання та розстановку всіх корпусних та м’яких меблів, включаючи кухонний острів, стіл, диван, ліжко та системи зберігання.


Етап 6: Комплектація, меблювання та декорування
Задача: Втілити фінальний дизайн-проєкт у життя, укомплектувавши простір усіма необхідними меблями та високоякісним обладнанням, що відповідає візуалізаціям.
Що було зроблено:
- Монтаж корпусних та вбудованих меблів: Згідно з кресленнями, були встановлені всі виготовлені на замовлення елементи: кухонний острів зі стільницею з керамограніту, вбудовані шафи, гардеробна система та тумба у санвузлі.
- Комплектація об’єкта меблями: Розміщено всі окремо стоячі предмети меблів, які були частиною початкової концепції, зокрема кутовий диван Svay від Interia, стіл Plissé Table та ліжко Pavarotti.
- Встановлення техніки та обладнання: Проведено монтаж та підключення всієї побутової техніки: телевізора Samsung “The Frame”, вбудованих пральної та сушильної машин, бойлера та іншого обладнання.
- Текстильне оформлення та декорування: Розвішано штори на заздалегідь змонтовані приховані карнизи KS Zero, укладено килими та додано фінальні декоративні елементи, які завершили цілісність образу.


Підсумки проєкту – Квартира в ЖК “River Stone” – це історія про трансформацію, де кожен метр став частиною унікального авторського задуму. Це місце, де інженерна довершеність залишається невидимою, але відчутною, а дизайн говорить сам за себе.