Ми завжди на зв’язку — відкриті до діалогу, запитань і ваших ідей. Якщо ви на старті шляху або вже готові діяти — просто залиште повідомлення. Відповімо, порадимо, запропонуємо найзручніший формат співпраці
Інженерний дизайн-проект квартири
Кейс: від концепції до повної реалізації.
Завдання:
Реалізація комплексного дизайн-проекту, де мінімалістична естетика вимагала прецизійного інжинірингу та будівельного виконання з нульовими допусками.Наш авторський та технічний нагляд забезпечив повну відповідність проекту, що включало розробку робочої документації ОВіК та ВК, інтеграцію прихованих комунікацій та монтаж вузлів прихованого монтажу.
Дані по об’єкту:
Старт робіт: Січень 2023
Локація:м. м. Київ, ЖК RiverStone
Площа: 57 м²
Стиль: Сучасний мінімалізм
Дизайнер : Світлана Москаленко
Будівництво: Суліко Хахва
Інженерія: Єгор Туник
Етап 1: Формування технічного завдання та аналіз об’єкта.
Задача: Синхронізувати бачення замовника з можливостями простору, розробивши чітку візуальну концепцію та функціональну модель майбутнього інтер’єру.
Що було зроблено:
- Бриф та консультація: Ми провели зустріч із замовниками, детально зафіксувавши всі функціональні та стилістичні вимоги для майбутнього проекту.
- Технічні обміри: Розробили та затвердили оптимальне планування, що перетворило простір на об’єднаний Open Space (26,25 м²), спальню (12,12 м²), душову кімнату (8,54 м²), гардеробну (4,50 м²) та передпокій (5,43 м²).
- Функціональне зонування: Розроблено планувальне рішення “open space” з інтеграцією спальні та ванної кімнати.
- Стилістика: Спільно обрали стилістику сучасного мінімалізму. Було зроблено ставку на контраст преміальних фактур: великоформатного керамограніту “Патагонія”, темного шпону та графітових поверхонь, що було продемонстровано на фінальних 3D-візуалізаціях.


Етап 2: Планування та концепт-дизайн.
Задача: створити детальний технічний посібник для будівельників, що унеможливлює будь-які розбіжності та гарантує точність втілення.
Що було зроблено:
- Формування детального кошторису: На основі повного пакету проектної документації було сформовано фінальний, детальний кошторис на всі роботи та матеріали, що забезпечило фінансову прозорість для клієнта.Це забезпечило повну фінансову прозорість для клієнта.
- 3D-візуалізація інтер’єру: Дизайнер Світлана Москаленко розробила фотореалістичні зображення, які дозволили замовникам побачити майбутній інтер’єр у всіх деталях.
- Дизайн-проєкт (25 аркушів): Включав повний пакет креслень: від планів монтажу/демонтажу до детальних розгорток стін та вузлів. Пропрацьовано унікальні елементи, як-от окремостояча ванна (1670х830 мм), та зазначено чистову висоту стелі 2480 мм.


Етап 3: Інженерні проєкти та їх реалізація
Задача: Закласти надійні інженерні комунікації згідно з проектом.
Що було зроблено:
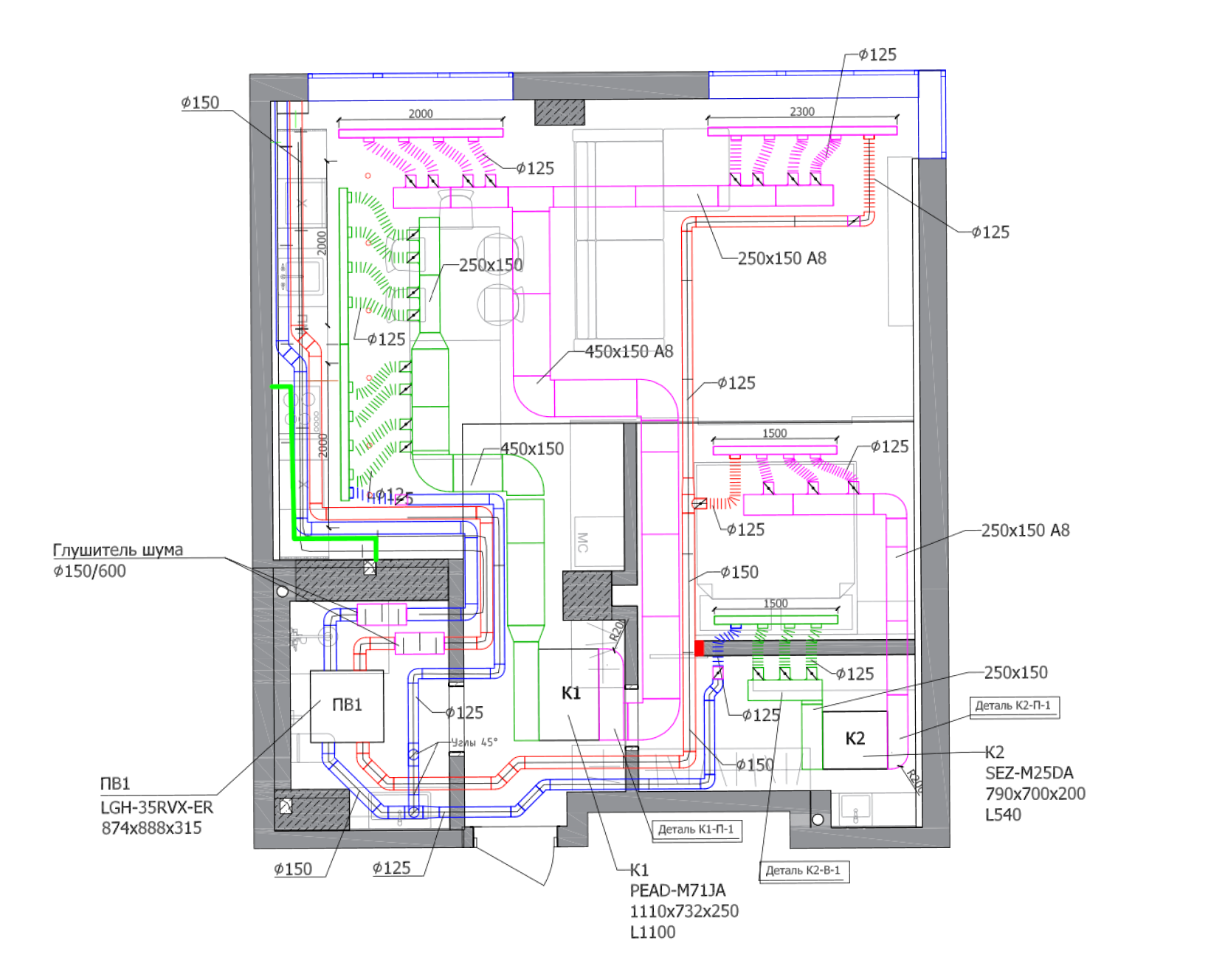
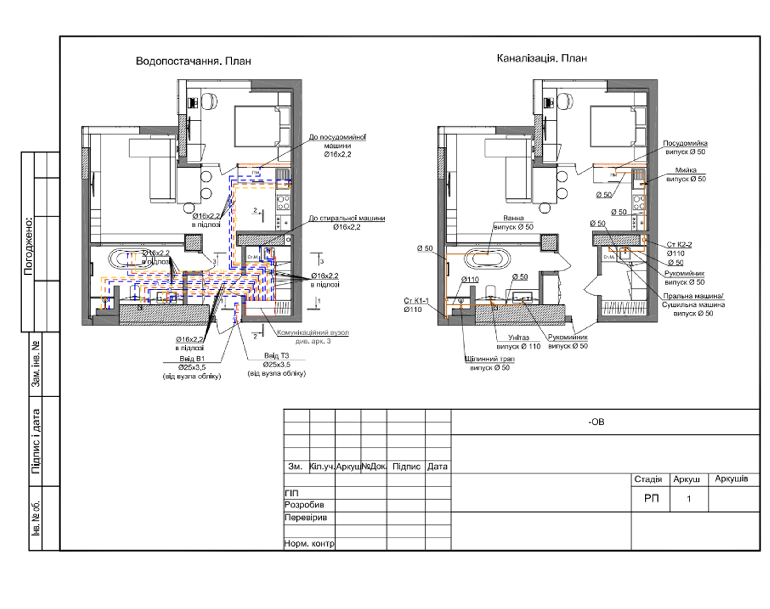
- Підготовка робочих креслень: Створено повний пакет технічної документації для розділів ОВіК (опалення, вентиляція, кондиціонування) та ВК (водопостачання, каналізація). Пропрацьовано схеми трасування комунікацій та розраховано підключення обладнання, включаючи систему вентиляції з шумоглушником Ø150/600 мм.
- Акустичний комфорт: Запроектовано систему шумоізоляції стін та змонтовано глушник шуму Ø150/600 мм в системі вентиляції для забезпечення тиші в приміщенні.
- Електротехніка: Реалізовано проект електропостачання з детальним плануванням розеток та груп освітлення. Забезпечено максимальну електробезпеку в “мокрих” зонах, що підтверджено відповідними схемами.
- Водопостачання та каналізація: Встановлено комплексну систему на трубах PEX-A та шумопоглинаючій каналізації Ostendorf. Інтегровано систему фільтрації води BWT та автоматичний захист від протікань.
- Опалення: Інтегровано в підлогу внутрішньопідлоговий конвектор Katherm QK nano та встановлено дизайнерський радіатор Kermi Plan. Змонтовано систему електричної теплої підлоги з програмованими терморегуляторами.


Етап 4: Чорнові роботи
Задача: Підготувати ідеальну основу — рівні стіни, підлогу та стелю — для чистового оздоблення.
Що було зроблено:
- Вирівнювання стін: Усі стіни були ідеально вирівняні, щоб фінішні покриття лягли бездоганно.
- Підготовка підлоги: Зробили нову стяжку, в яку одразу вмонтували систему “тепла підлога”. Рівень підлоги розрахували так, щоб паркет і плитка у фіналі були в одну площину.
- Монтаж стелі: З гіпсокартону звели конструкції для стелі з різними рівнями та нішами під приховану підсвітку, як було задумано в дизайн-проекті.


Етап 5: Чистові оздоблювальні роботи
Задача: поєднати всі чистові матеріали та надати простору завершеного вигляду.
Що було зроблено:
- Підлога: Виконали укладання паркету та великоформатного керамограніту Fondovalle, Ariana Nobile та Iris FMG Patagonia.
- Стіни: Поєднали кілька фінішних покриттів: фарбування, декоративну штукатурку та стінові панелі зі шпону.
- Двері та освітлення: Змонтували двері прихованого монтажу та комплексну систему освітлення, що включає магнітні трекові системи та тіньові профілі з LED-підсвіткою.


Етап 6: Комплектація, меблювання
Задача: Комплектація об’єкта згідно зі специфікаціями проекту та фіналізація інтер’єру.
Що було зроблено:
- Монтаж корпусних меблів: Встановлено всі меблі, виготовлені за індивідуальними кресленнями, включаючи кухонний гарнітур та системи зберігання.
- Комплектація меблями: Розміщено всі окремостоячі елементи: диван, барні стільці та ліжко розміром 1600х2200 мм.
- Встановлення інженерного обладнання: Змонтовано бойлер Electrolux, систему фільтрації BWT, конвектор Katherm QK nano та радіатор Kermi Plan.
- Монтаж освітлення та сантехніки: Встановлено всі освітлювальні прилади, включаючи трекові системи та LED-профілі, а також змонтовано всю сантехніку.


Етап 7: Фіналізація та здача об’єкта
Задача: перевірити відповідність реалізованого простору проектній документації та передати замовникам об’єкт, повністю готовий до експлуатації.
Що було зроблено:
- Післябудівельний клінінг: Проведено повний комплекс професійного клінінгу для підготовки всіх поверхонь та приміщень до фінального декорування.
- Декорування інтер’єру: Виконано фінальне декорування простору: розвішено текстиль на приховані карнизи та додано декоративні елементи, що завершили цілісність образу згідно з концепцією.
- Проєкт успішно завершено! Замовникам Андрію та Оксані було передано повністю готовий до життя простір.


І в кінці розумієш, що наша робота — це не про квадратні метри чи креслення, а про створення особливого простору для особливих людей.